Regular price
$50.00 USD
Regular price
Sale price
$50.00 USD
Unit price
per
Shipping calculated at checkout.
21 in stock, more available with 2 week leadtime
Need to Expedite?
Need to Expedite?
Couldn't load pickup availability
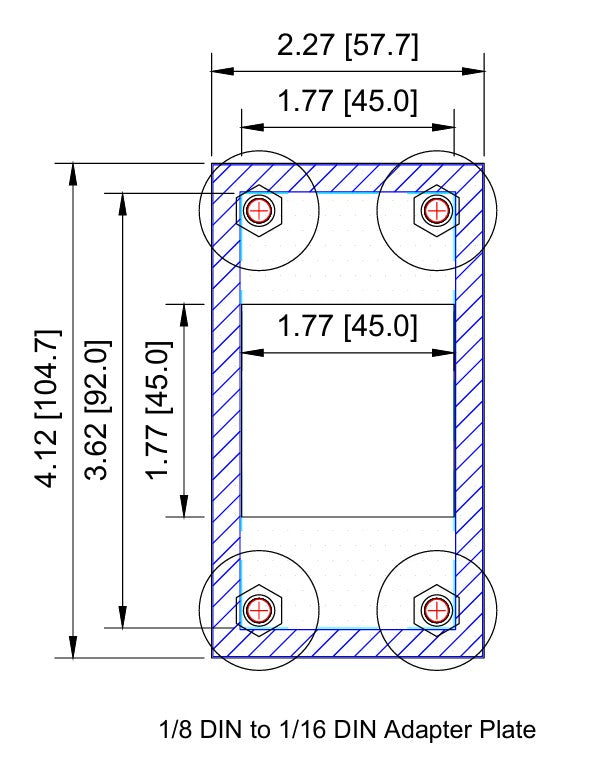
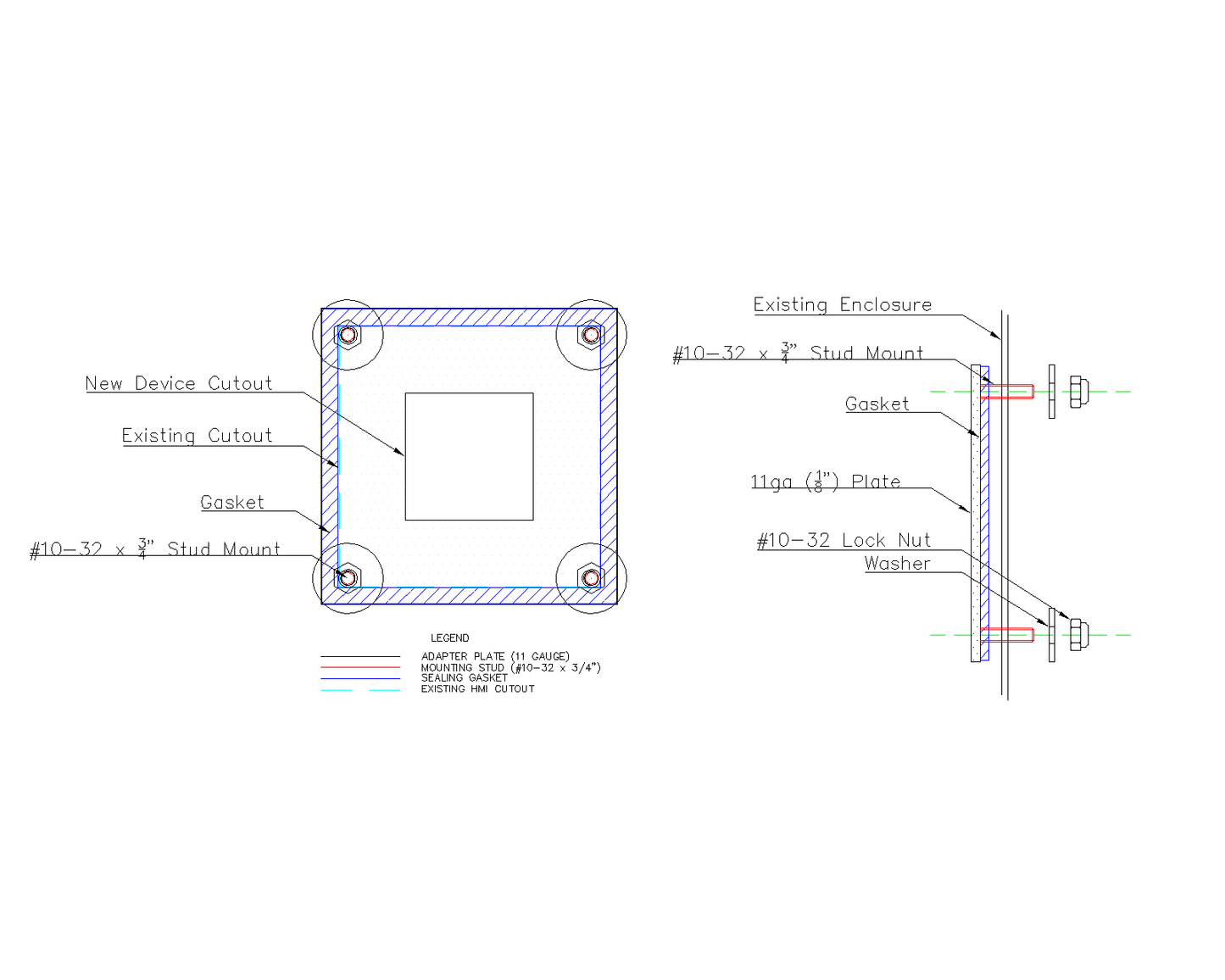
Specifications:
- Existing Size: 1/8 DIN
- New Size: 1/16 DIN
- 11 Gauge Heavy Duty Adapter Plate
- No Drilling Required (Plate Mounts Inside Existing Cutout)
- Includes Washers and Lock Nuts for Mounting
- Includes a Seamless Closed-Cell Neoprene Gasket
Documents:
Rating:
- Steel: NEMA 12, 13, 1
- Stainless: NEMA 4X, 4, 12, 13, 1
- IP66
View full details









